3D Ngoại Thất Ngôi nhà mái thái 2 tầng
Ngôi nhà mái thái 2 tầng gây ấn tượng với thiết kế tân cổ điển đẹp cuốn hút và sang trọng. Những hình khối kiến trúc vuông vắn, chắc chắn thể hiện sự mạnh mẽ uy nghi. Những hoạ tiết hoa văn trang trí, đường gờ phào chỉ, mái vòm cong quyến rũ kết hợp với màu sơn trắng chủ đạo đã mang lại vẻ đẹp tinh tế vượt thời gian. Màu trắng luôn là gam màu “quốc dân” được yêu thích và ứng dụng nhiều nhất trong cc mẫu nhà, biệt thự đẹp. Màu trắng dễ dàng phối được với tất cả các màu sắc khác nhau để đem lại một tổng thể hài hoà cùng vẻ đẹp trường tồn với thời gian, không sợ bị lỗi mốt. Đố lập với nền sơn trắng là màu đen huyền bí của khung nhôm xingfa, khung hoa sắt mỹ thuật, màu nâu của cửa gỗ, màu xanh của mái Thái như càng tạo điểm nhấn nổi bật cho kiến trúc mặt tiền.

biệt thự 2 tầng mái thái

Hệ sảnh khỏe khoắn với những trụ cột thiết kế vuông tròn được đắp gờ phào chỉ độc đáo trên đầu cột. Diện tường bên trụ cột đắp nổi dọc xuyên suốt từ tầng 1 lên đến tầng 2 khiến cho căn nhà mái Thái tân cổ 2 tầng càng thêm thanh thoát và bề thế. Mái sảnh vòm bán nguyệt kết nối hai trụ cột vừa có tác dụng che chắn nắng mưa hắt vào bên trong vừa tạo nét cuốn hút, mềm mại cho phong cách tân cổ điển. Cửa chính chúng tôi sử dụng chất liệu gỗ tự nhiên pano kính. Vật liệu gỗ tạo sự kín đáo, an toàn đồng thời giúp tăng tính thẩm mỹ sang trọng cho mặt tiền. Hệ cửa còn lại làm bằng nhôm xingfa kết hợp kính cường lực cao cấp tạo không gian thoáng đãng, giúp ngôi nhà lúc nào cũng ngập tràn ánh sáng Vẻ đẹp mềm mại của ban công hình bán nguyệt đua ra trên tầng 2 như những nét chấm phá khiến cho căn biệt thự càng trở nên đẹp quyến rũ. Lan can làm bằng khung hoa sắt nghệ thuật với những hoa văn tinh xảo, phủ sơn vàng mang đậm chất hoàng gia sang trọng và đẳng cấp.

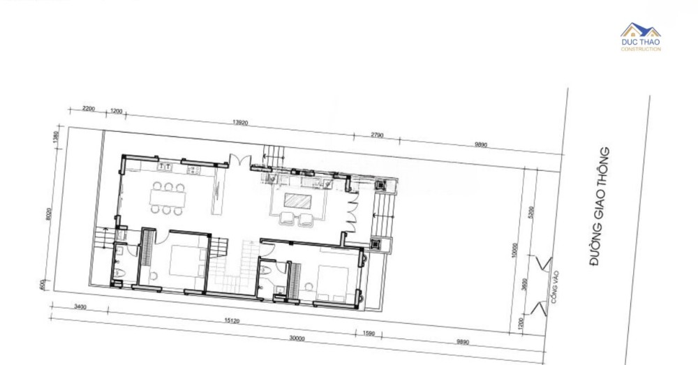
Mặt bằng định vị công trình
Từ sảnh chính bước vào ta sẽ thấy ngay không gian phòng khách sang trọng, thoáng mát, được bày trí nội thất hiện đại, tiện nghi. Phía sau là khu vực bếp và phòng ăn, 2 phòng được ngăn bởi hệ lam gỗ vừa đảm bảo được sự riêng tư vừa có sự thông thoáng nhất định. Hai phòng ngủ rộng rãi tiện nghi được bố trí gần cầu thang. Cuối nhà bố trí khu vực vệ sinh chung.

Mặt bằng công năng tầng 1 nhà mái Thái tân cổ
Không gian đầu tiên ta thấy khi bước lên tầng 2 là phòng làm việc. Bên cạnh là phòng thờ được đặt trang trọng ở vị trí đẹp và hài hoà về phong thuỷ, căn phòng này mở ra ban công rộng rãi cũng là không gian sân chơi lý tưởng giúp gắn kết tình cảm gia đìnhPhòng ngủ master 03 có diện tích rộng nhất dành cho vợ chồng gia chủ, bên trong có phòng thay đồ, nhà vệ sinh khép kín. Còn lại là phòng ngủ 04, phòng ngủ nào cũng sở hữu view ban công vô cùng lý tưởng và thoáng mát giúp cho các thành viên có được cảm giác nghỉ ngơi, thư giãn trọn vẹn nhất.

Kiến trúc tân cổ điển không quá chú trọng vào hoa văn, phào chỉ phức tạp mà chọn họa tiết tinh túy, điển hình nhất để nhấn lên vẻ sang trọng, đẳng cấp vững bền cùng thời gian. Để đảm bảo không gian sống của gia chủ được thoải mái và thư giãn nhất, chúng tôi đã thiết kế nhiều ô cửa sổ kính lớn ở diện tường tầng 1 và tầng 2 giúp thu hút gió trời và mang ánh sáng tự nhiên tràn ngập vào bên trong. Không thể thiếu những mảng xanh để tô điểm cho căn biệt thự thêm đẹp mắt và sinh động cũng như tăng khả năng thanh lọc bầu không khí quanh nhà. Về vị trí ngôi nhà mái Thái tân cổ điển 2 tầng nằm theo hướng Đông Nam, có kích thước 9,4 x 18m. Tổng diện tích sử dụng của cả 2 tầng rơi vào khoảng 255m². Các KTS của Đức Thảo đã bố trí căn nhà với đầy đủ công năng, nhằm một không gian sống lý tưởng, hài hòa và thoải mái nhất cho gia chủ

Mặt bằng công năng tầng 1 nhà mái Thái tân cổ
Không gian đầu tiên ta thấy khi bước lên tầng 2 là phòng làm việc. Bên cạnh là phòng thờ được đặt trang trọng ở vị trí đẹp và hài hoà về phong thuỷ, căn phòng này mở ra ban công rộng rãi cũng là không gian sân chơi lý tưởng giúp gắn kết tình cảm gia đìnhPhòng ngủ master 03 có diện tích rộng nhất dành cho vợ chồng gia chủ, bên trong có phòng thay đồ, nhà vệ sinh khép kín. Còn lại là phòng ngủ 04, phòng ngủ nào cũng sở hữu view ban công vô cùng lý tưởng và thoáng mát giúp cho các thành viên có được cảm giác nghỉ ngơi, thư giãn trọn vẹn nhất.
